Par ses nombreuses missions, le géomètre œuvre largement aux problématiques de l'aménagement du territoire. Notre bureau participe à la révision de plans généraux d'affectation et à l'élaboration de plans spéciaux (PPA, PQ), le plus souvent en collaboration avec les urbanistes ou aménagistes. Nous élaborons nombre de documents tels que les plans fixant la limite des constructions, les lisières forestières légalisées et l'aperçu de l'état de l'équipement.
Nos compétences techniques et juridiques nous permettent de conseiller les communes dans l'application des différents règlements et lois liés à l’aménagement du territoire et de les accompagner dans la délivrance des permis de construire et permis d'habiter.
Nous sommes également actifs dans les démarches dites d'améliorations foncières (AF), en zone à bâtir où il s'agit de concilier les aspects fonciers et financiers d'un projet de mise en valeur du sol, ou en zone agricole où il est question d'assurer une utilisation rationnelle du sol pour en faciliter l’exploitation, pour la préserver des dévastations ou destructions que pourraient causer les éléments naturels et pour améliorer les conditions de production.
Syndicat d’améliorations foncières de terrains à bâtir
- Etablissement de l’étude de faisabilité
- Etude du nouvel état parcellaire, estimation et répartition des droits
- Remaniement parcellaire
- Etablissement de l’avant-projet des travaux collectifs et de la clé de répartition des frais
- Epuration des droits inscrits au Registre foncier
- Réalisation et coordination du projet
Plan d'affectation
- Pré-étude de redimensionnement de la zone à bâtir et stratégie communale en la matière : évaluation du surdimensionnement initial (actualisation du bilan MADR, vision communale et demande de subventionnement), calcul des possibilités de croissance à l’horizon de planification, formulation des objectifs quantitatifs et qualitatifs, délimitation du périmètre du territoire urbanisé, calendrier et estimation des coûts
- Etablissement du projet de nouveau PACom et des planifications complémentaires, nouveau plan d’affectation et révision du règlement en vigueur
- Etablissement/actualisation du plan des limites de construction
- Actualisation des lisières forestières
- Plan fixant les limites des constructions
- Plans de classement des arbres
- Aperçu de l’Etat de l’Equipement (AEE)
- Modification et ajustement du projet de PACom et préparation à l’enquête publique
- Etablissement des fichiers de transfert NORMAT 2
Plan de quartier
- Etude de faisabilité (état foncier et état de l’équipement)
- Etude du nouvel état parcellaire, estimation et répartition des droits
- Etablissement de l’avant projet des travaux collectifs (EU, EC, AE, accès, etc.)
- Clé de répartition des frais
- Etablissement des conventions
- Epuration des droits inscrits au Registre Foncier
- Réalisation et coordination du projet
- Projet définitif, appel d’offres, marchés sur invitation
La police des constructions fait également partie de notre quotidien. Plusieurs collaborateurs de notre cellule spécifiquement dédiée à ces tâches réalisent régulièrement des analyses de dossiers de demande de permis de construire et apportent leur expérience en la matière. Bon nombre de Communes nous font confiance et nous leur faisons profiter de nos compétences et de notre expérience en leur offrant un soutien sur toutes les étapes jalonnant la vie d’un projet de construction. La police des constructions fait appel à des compétences larges et couvertes par différents interlocuteurs/mandataires. De manière générale, et selon l’expertise technique souhaitée, nous sommes à même d’intervenir dans les tâches suivantes.
Conseil et aide à la décision
- Analyse d’une demande aux yeux de la jurisprudence
- Aide à la décision, conseils
- Accompagnement dans le choix de la procédure (autorisation municipale, dispense d’enquête publique, procédure d’enquête publique, demande d’autorisation)
Examens préalables
- Eventuelles séances préparatoires dans vos locaux
- Rapport de faisabilité du projet ou analyse de constructibilité d’un bien-fonds
- Analyse d’un dossier d’avant-projet
- Orientation d’un projet avec le MO et/ou l’architecte
Dossiers d’enquête publique
- Eventuelles séances préparatoires dans vos locaux
- Analyse du dossier (plans, questionnaire générale CAMAC et demande spéciale)
- Rapport technique avec proposition de préavis
- Aide à la décision dans le cadre du traitement des oppositions (analyse et proposition), participation aux séances de conciliation (sur demande)
- Validation technique du permis de construire
Permis d’habiter / d’utiliser
- Participation à la visite des lieux à la fin des travaux avec le Municipal responsable
- Analyse de conformité avec la délivrance du permis de construire
- Rapport technique
- Validation technique du permis d’habiter/d’utiliser
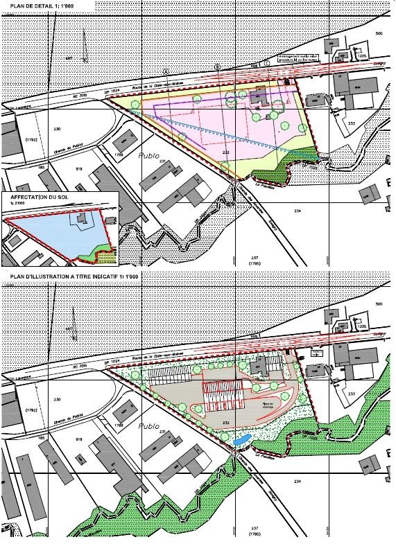
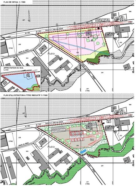
Extrait - Révision alignement secteur de Cully














